Cliff Dwellings Reimagined
Vertical Living and Community
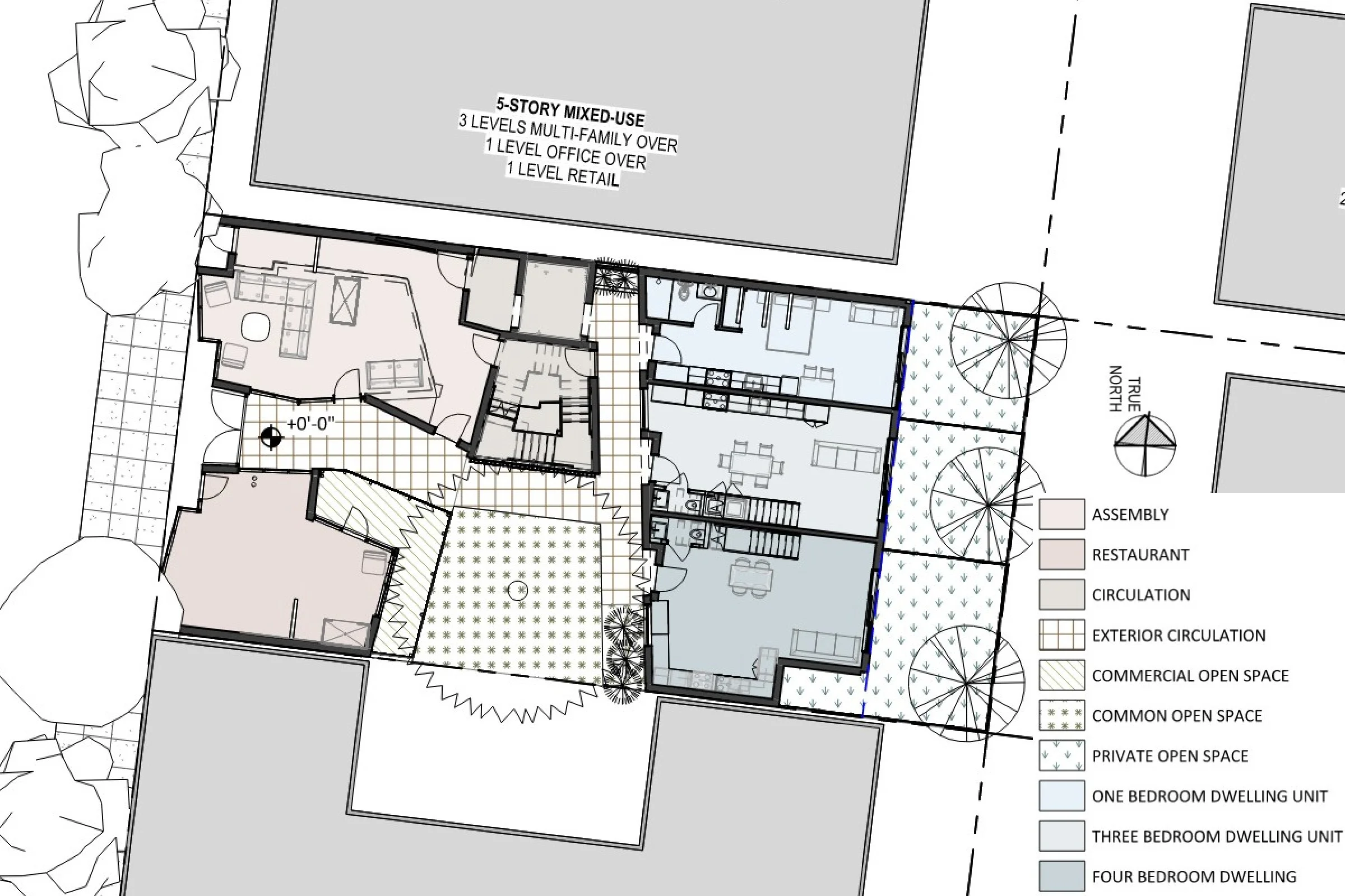
Inspired by Ancestral Puebloan cliff dwellings, Cliff Dwellings Reimagined explores vertical living to increase density while fostering community. Terraced units with shared outdoor spaces and a single stair promote social connection, security, and sustainability — a modern village rooted in ancient wisdom.

